* Las fotos están solo con fines ilustrativos, el producto real puede diferir pues la madera llega natural y sin tratar.
Casa de madera para vivir ERICA 2 PV
(*) El importe arriba indicado es el modelo base, también existe la opción de llave en mano.
Los contenidos y descripciones abajo mencionadas son del modelo más avanzado de este modelo de casa (consulta en la barra lateral los modelos disponibles) →
Opciones disponibles para este modelo
Alféizar metálico
Barniz de pared Paneeli-Ässä 10
Barniz de suelo Pontti 5
Cubierta de tejado: lámina bituminosa autoadhesiva
Kit de terraza (8,53 x 2,33 m)
Recuperador VL-80U5-E
Servicio de montaje
Sistema de canalones de acero Ruukki
Suelos de vinilo
Tratamiento contra la humedad incoloro (interior)
Ventanas con triple acristalamiento
Documentación disponible para descargar
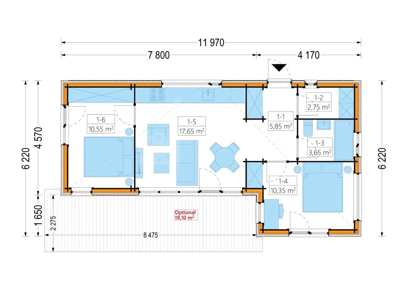
Planos y detalle
Fotos de clientes
Otras casas de la misma categoría
Viendo 1-4 de 39 casas de esta categoría
Características
Opciones del mismo modelo
Contactar

Llama ahora y pide una cita
Horario
Horario de lunes a viernes:
de 10:00 – 13:30 y
de 17:00 – 20:30 horas





